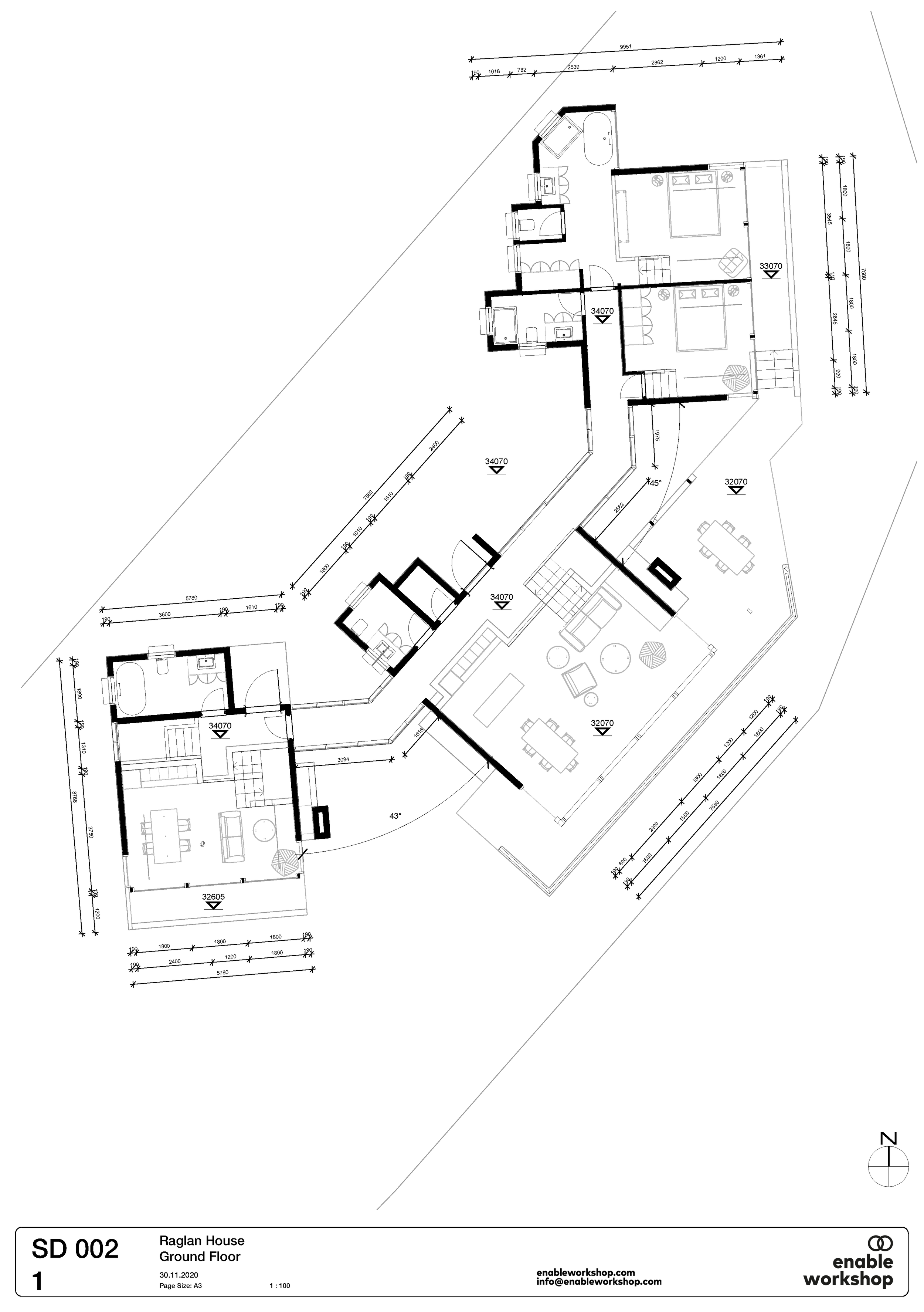
Raglan House

Enable Workshop (Private Work)

Raglan, NZ

2020

 

Building Consciously

The proposed house is build from four primary materials; rammed earth, structural concrete, timber and glass.

Consideration has been given to the environmental impact of the building when selecting materials.

The “Construction Materials Pyramid” above, developed by the Danish Centre for Industrial Architecture illustrates the carbon impacts of various common materials. Our goal is to build with a net-zero carbon impact by using materials with negative impacts to combat those that have positive impacts.

ConcreteConcrete will be used for the foundations and retaining walls of the house, as well as for the floors.It has a positive carbon impact, but can be reduced by using recycled aggregate.

Concrete

Concrete will be used for the foundations and retaining walls of the house, as well as for the floors.

It has a positive carbon impact, but can be reduced by using recycled aggregate.

 
TimberGlulam and construction timber are proposed for the roof structure of the house and for doors, windows and cabinetry.Because timber stores carbon, it has a negative carbon impact.

Timber

Glulam and construction timber are proposed for the roof structure of the house and for doors, windows and cabinetry.

Because timber stores carbon, it has a negative carbon impact.

Rammed EarthRammed earth is a construction material made up of compressed clay. It is build with timber shuttering which can be reused across the site. If proven feasible, the clay could be taken directly from the excavation work of the site.Because…

Rammed Earth

Rammed earth is a construction material made up of compressed clay. It is build with timber shuttering which can be reused across the site. If proven feasible, the clay could be taken directly from the excavation work of the site.

Because it involves no processing or transport, rammed earth had a carbon impact of zero.

 
GlassGlass is required in the house to let both to let light and views in. Ideally the majority of the glass would be double-glazed so that it insulated the building envelope.This will have a positive carbon impact.

Glass

Glass is required in the house to let both to let light and views in. Ideally the majority of the glass would be double-glazed so that it insulated the building envelope.

This will have a positive carbon impact.

 

Concept Design

 
Separated but LinkedSeparating the programme of the house into  separate buildings helps to break down it’s mass, while also allowing greater differentiation between public and private parts of the house.These buildings could then be linked by a con…

Separated but Linked

Separating the programme of the house into separate buildings helps to break down it’s mass, while also allowing greater differentiation between public and private parts of the house.

These buildings could then be linked by a constant route running between them.

Edges and OpeningsWhere the buildings meet, they will open up to create courtyards. These will be the main social spaces of the house and be designed to take advantage of sunlight and views.

Edges and Openings

Where the buildings meet, they will open up to create courtyards. These will be the main social spaces of the house and be designed to take advantage of sunlight and views.

Points of InteractionThe outdoor spaces created by the separate building are points at which varying degrees of interaction between them can occur.

Points of Interaction

The outdoor spaces created by the separate building are points at which varying degrees of interaction between them can occur.

ViewsThe convex slope of the site allows for the buildings to be situated so that views of the lagoon and the town can be maximised from both inside and outside the house.

Views

The convex slope of the site allows for the buildings to be situated so that views of the lagoon and the town can be maximised from both inside and outside the house.


 
1_1+-+Photo.jpg

View from the East

The house is designed to sit comfortably on and with the slope of the site, with ample outdoor space linking it’s wings. Morning light will flood the living space and bedrooms from the this direction.

Rammed earth walls will ideally be built from local earth or even that of the site itself, helping the building to belong to the site.

Existing mature trees remain on the site, with the house surrounding them.

1_4 - Photo.png

Main Courtyard

The roof of the living space extends outside to cover an outdoor dining area, protected from the wind. This space is also directly accessible from the bedroom patios and hosts the primary views of the lagoon, making it a clear gathering space.

1_2 - Photo.jpg

The Slope Revealed

The back of the courtyard reveals the slope of the site with indigenous grasses and foliage. This also helps to create a separation between the public living space and private bedrooms.

1_3 - Photo.jpg

Living Room

The living room is the centre of the house and consists of open kitchen and dining spaces beside a main lounge space and fireplace.

The room leads directly to the main courtyard and to a full-length balcony overlooking the lagoon.The descending roof pitch allows for clear-storey windows at the back of the space for afternoon light to enter, and also frames the view of the lagoon from within the space.

1_5 - Photo.jpg

Open Bedroom

The main bedroom is proposed to be split-level with a dressing room and bathroom of the higher level and the bedroom itself below. This room would benefit from morning light directly though the front glazing and skylights.

1_7 - Photo.jpg

Open Bedroom

The main bedroom is proposed to be split-level with a dressing room and bathroom of the higher level and the bedroom itself below. This room would benefit from morning light directly though the front glazing and skylights.

1_9 - Photo.png

Part of the Slope

The terraced interior of the house means that it responds gently to the slope and can allow light to penetrate from both sides. It also creates a dramatic entrance and views and perspectives are slowly revealed as one moved from the entrance to the living space.